
您當前的位置:首頁 / 安全閥知識 / 行業動態 / 美標安全閥是如何構成的?
美標安全閥的構成通常包括以下主要部件:

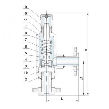
閥體(Valve Body):閥體是安全閥的主要外殼,通常由金屬材料制成,如鑄鐵、碳鋼、不銹鋼等。閥體內部容納其他部件,如閥瓣、彈簧等,并連接到管道系統中。
閥瓣(Disc):閥瓣是安全閥中的活動部件,負責在壓力超過設定值時打開或關閉,以排放壓力或阻止介質流動。閥瓣通常采用金屬制成,表面可能進行特殊處理以提高密封性能。
彈簧(Spring):彈簧是安全閥中的重要組成部分,負責提供關閉力和啟動力,以保證安全閥在正常工作壓力范圍內能夠準確啟閉。彈簧的選材和彈性設計對安全閥的性能影響重大。
密封件(Sealing Element):安全閥的密封件包括閥瓣與閥座之間的密封和閥體與管道連接處的密封。好的密封件能夠確保安全閥在關閉狀態下具有良好的密封性能,避免介質泄漏。
調節裝置(Adjusting Device):調節裝置用于調整安全閥的啟閉壓力,以適應不同工作壓力條件。通常包括調節彈簧的預壓或調節閥瓣的位置等方式。
導向裝置(Guide Device):導向裝置用于引導閥瓣在啟閉過程中的運動軌跡,以確保閥瓣能夠準確、穩定地啟閉,同時減少摩擦損失和卡阻現象。
排放口(Discharge Outlet):排放口是安全閥用于排放過壓介質的出口,通常連接到排放管道或安全區域。排放口的設計應考慮介質的特性和排放方式,以確保安全排放。
附件和配件:除了上述主要部件外,安全閥還可能包括一些附件和配件,如溫度傳感器、壓力表、排放管道等,以滿足特定的工程需求或提高安全閥的功能性和可靠性。
以上是構成美標安全閥的主要部件,不同類型的安全閥可能會有一些差異,但基本結構和功能類似。
本文鏈接:http://m.baililong.cn/content37-493.htm
新聞推薦
美標安全閥和其他安全閥有什么區別2024-04-19
美標安全閥是指符合美國標準(American Standard)的安全閥,其設計、制造和性能測試均符合美國相關標準和規范。…
美標彈簧式安全閥結構特點及應用2024-03-02
美標彈簧式安全閥,即按照美國標準設計制造的彈簧加載型安全閥,接下來由阿司米安全閥廠家介紹美標彈簧式安…
國際安全閥與美標安全閥?之間的區別有哪些2024-02-21
國際安全閥與美標安全閥?之間的區別主要體現在設計標準、檢驗要求以及應用規范上。
美標安全閥:工業an全保護的重要保障2023-07-29
?在工業生產中,壓力設備的an全運行zhi關重要。而美標安全閥作為一種重要的壓力釋放裝置,為工業設備提供了…
美標安全閥:保障工業設備an全運行的關鍵組件2023-07-29
?美標安全閥作為工業設備中的重要組件,起到了關鍵的an全保護作用。它能夠監測和控制壓力,當設備內部壓力…
美標安全閥:an全性能好、適應性廣的重要設備2023-06-25
美標安全閥是一種廣泛應用于各種流體系統中的重要設備,具有高可靠性、an全性強、響應迅速等優點。其可靠地…
美標安全閥工業的重要設備2023-06-25
?美標安全閥是一種重要的閥門設備,主要用于對液態、氣態及蒸汽工作介質的過壓保護。其主要優點在于結構緊…
美標安全閥:如何正確選擇和安裝2023-06-05
美標安全閥是一種an全裝置,選擇正確尺寸的美標安全閥對于保障an全、減少損失和提高xiao益非常重要。以下溫州…
美標安全閥:如何應用于石化工業中2023-06-05
美標安全閥是一種an全裝置,應用于各種不同類型的熱力設備和管道,如石化、包裝、化工、制藥和食品工業中。…
美標安全閥安裝注意事項2023-04-19
額定蒸發量大于0.5t/h的鍋爐,zhi少裝設兩個美標安全閥:額定蒸發量小于或等于0.5t/h的鍋爐,zhi少裝一個美標安全…
相關產品